Проект № w-242-1k ЗЕРКАЛЬНЫЙ

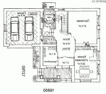
W-242-1K проект одноэтажного дома из кирпича с мансардой и гаражом размером 13 на 17
проект
W-242-1K
W-242-1K проект одноэтажного дома из кирпича с мансардой и гаражом размером 13 на 17
W-242-1K проект одноэтажного дома из кирпича с мансардой и гаражом размером 13 на 17
W-242-1K проект одноэтажного дома из кирпича с мансардой и гаражом размером 13 на 17
ЦЕНА

33 800 руб.

Купить проект ВЕРСИЯ ДЛЯ ПЕЧАТИ


Общая площадь241.5 м2
Габариты12.76 x 16.85 м
МансардаЕсть
Спальни и жилые комнаты, кроме гостиных3 шт
С/у, ванны3 шт
СпорткомплексЕсть
Зимний садЕсть
ГаражЕсть


РЕЙТИНГ
★★★★★
★★★★★
(1 оценка):
Внешний вид:
★★★★★
★★★★★
Планировки:
★★★★★
★★★★★


ОБЗОРЫ ПО ПРОЕКТУ:

По данному проекту обзоров нет

Архив обзоров

АКЦИИ НА ЭТОТ ПРОЕКТ:
На этот проект предусмотрена бесплатная доставка (только на территории РФ).

МАТЕРИАЛЫ ДЛЯ СТРОИТЕЛЬСТВА ДОМА:
Фундамент - сборный ленточный из фундаментных ж/б блоков
Наружные стены - кирпич
Перекрытия - сборные ж/б плиты
Покрытие кровли - металлочерепица или мягкая черепица типа «тегола канадезе» или “katepal"
Наружная отделка - штукатурка
Наружная отделка цоколя - натуральный камень

ВАРИАНТЫ ПРОЕКТА И ПОХОЖИЕ

Зеркальный вариант
33 800 руб
СТОИМОСТЬ ПРОЕКТА

Цены на проекты, услуги и все прочие товары приведенные ниже актуальны на 06.05.2026.

Комплектация: Цена (руб):
Архитектурно-строительные чертежи W-242-1K 33 800
Доп. комплект чертежей без лицензии (копия для строителей) W-242-1K 2 500
Паспорт проекта W-242-1K 2 500
Дополнительные услуги: Цена (руб):
Строительство, материалы, консультация, смета -

Паспорт проекта и Доп. комплект чертежей без лицензии (копия для строителей) отдельно от основного комплекта не продаются.

Купить проект



ФОРУМ И ОТЗЫВЫ ПО ПРОЕКТУ № W-242-1K
Copyright Postroi.ru © 2002-2026