
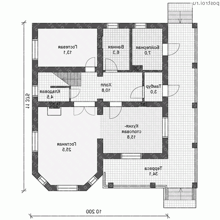
| Общая площадь | 166.47 м2 |
| Жилая площадь | 85.93 м2 |
| Площадь застройки | 158.41 м2 |
| Габариты | 11.375 x 10.2 м |
| Высота в коньке | 9125 м |
| Жилые комнаты 1 этажа, кроме гостиных | 1 шт |
| Спальни и жилые комнаты, кроме гостиных | 4 шт |
| С/у, ванны | 3 шт |
| Внешний вид: |
★★★★★ ★★★★★ |
| Планировки: |
★★★★★ ★★★★★ |
По данному проекту обзоров нет
Архив обзоров1-й этаж, высота 2.94 м 
2-й этаж, высота 2.75 м 
Вид спереди
Вид слева
Вид справа
Вид сзади
| Материал: | Кол: | Ед.изм: | Коммент: |
|---|---|---|---|
| Строительный объём | 1466.17 | м3 | |
| Площадь кровли | 205.71 | м2 | |
| Кирпич | 156.61 | м3 | Поризованный кирпич М150 для наружных и внутренних несущих стен. |
| Кирпич | 8.33 | м3 | Пустотелый кирпич М150 для перегородок. |
| Кирпич | 9.96 | м3 | Кирпич полнотелый М150 для вентканалов. |
| Искусственный камень | 50.1 | м2 | |
| Песок | 125 | м3 | Фундамент |
| Бетон | 74 | м3 | Бетон кл. В20 (Фундамент) |
| Бетон | 19 | м3 | Бетон кл. В7,5 (Фундамент) |
| Бетон | 17.8 | м3 | Бетон кл. В25 (Плита перекрытия) |
| Бетон | 18.8 | м3 | Бетон кл. В25 (Плита перекрытия) |
| Пеноплекс | 9 | м3 | Пеноплекс 45 (Фундамент) |
Цены на проекты, услуги и все прочие товары приведенные ниже актуальны на 07.02.2026.
| Комплек |
Цена (руб): |
|---|---|
| Архитектурно-строительные чертежи V-166-1K | 38 000 |
| Доп. комплект чертежей без лицензии (копия для строителей) V-166-1K | 2 000 |
| Паспорт проекта V-166-1K | 5 000 |
| Инженерные сети (ВК.ОВ) V-166-1K | 8 000 |
| Дополни |
Цена (руб): |
| Добавить гараж (цена от) | 20 000 |
| Изменение типа перекрытий (цена от) | 15 000 |
| Строительство, материалы, консультация, смета | - |
| Изменение типа фундамента (цена от) | 15 000 |
Паспорт проекта и Доп. комплект чертежей без лицензии (копия для строителей) отдельно от основного комплекта не продаются.
Сухорец
Возможна замена фундамента на ленточный монолит? Геология обязательна?
Наталья
Замена фундамента возможна, данная услуга платная. Геология желательна.
Петр Волевой
Возможно ли строительство данного дома из газобетона? Если возможно, разместите, пожалуйста, разрез по дому.
Наталья
проект в газобетоне разработан :http://www.postroi.ru/projects/v-166-1p/ , разрез по проекту выкладывааем
Роман
здравствуйте. а внешнюю отделку штукатурку на кирпич поменять можно?
Эллада
Добрый день! Да, это возможно. Существует вариант проекта: http://www.postroi.ru/projects/p-176-1p/