
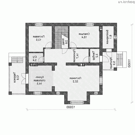
| Общая площадь | 197.37 м2 |
| Жилая площадь | 125.28 м2 |
| Площадь застройки | 171.83 м2 |
| Габариты | 11.95 x 13.5 м |
| Жилые комнаты 1 этажа, кроме гостиных | 2 шт |
| Спальни и жилые комнаты, кроме гостиных | 6 шт |
| С/у, ванны | 3 шт |
| Внешний вид: |
★★★★★ ★★★★★ |
| Планировки: |
★★★★★ ★★★★★ |
По данному проекту обзоров нет
Архив обзоров1-й этаж, высота 2.89 м 
2-й этаж, высота 2.8 м 
Вид спереди
Вид слева
Вид справа
Вид сзади
| Материал: | Кол: | Ед.изм: | Коммент: |
|---|---|---|---|
| Строительный объём | 1556.8 | м3 | |
| Площадь кровли | 221.46 | м2 | |
| Газобетон | 147.12 | м3 | 400 мм, для наружных и внутренних несущих стен |
| Газобетон | 12.91 | м3 | 150 мм, для перегородок |
| Кирпич | 8.98 | м3 | М150, полнотелый для вентканалов и колонн |
| Искусственный камень | 60.86 | м2 |
Цены на проекты, услуги и все прочие товары приведенные ниже актуальны на 08.11.2025.
| Комплек |
Цена (руб): |
|---|---|
| Архитектурно-строительные чертежи U-198-1P | 38 000 |
| Доп. комплект чертежей без лицензии (копия для строителей) U-198-1P | 2 000 |
| Паспорт проекта U-198-1P | 5 000 |
| Инженерные сети (ВК.ОВ) U-198-1P | 8 000 |
| Дополни |
Цена (руб): |
| Изменение типа перекрытий (цена от) | 10 000 |
| Добавить гараж (цена от) | 20 000 |
| Изменение типа фундамента (цена от) | 10 000 |
| Строительство, материалы, консультация, смета | - |
Паспорт проекта и Доп. комплект чертежей без лицензии (копия для строителей) отдельно от основного комплекта не продаются.
Gala77
при заказе этого проекта, можно ли будет получить полный комплект чертежей с инжинер. комун-и?
Эллада
данный проект содержит только архитектурно-строительную часть, инженерного раздела в нем нет и не будет. Для его разработки Вы можете обратиться в специализированные организации, которые занимаются разработкой сетей.
Gala77
по наружной стене вопрос возник: а зачем нужен минераловатный утеплитель 50 мм, дом на какой регион расчитан? производители газоблоков говорят по инструкции запрещается утеплять газоблоки, они говорят что его надо только штукатурить.
Эллада
По данному проекту область строительства – климатические условия России с ГСОП до 5000 С сутки. Это Москва и область, СПб и область, регионы со сходным климатом. Проектом предусмотрено наружное утепление минераловатными плитами. Т.к. проект разработан в соответствии со всеми нормами и СНиПами, в т.ч. СНиП II-22-81 "Каменные и армокаменные конструкции", вопрос целесообразности отказа от утеплителя остается на усмотрение застройщика.
Gala77
у данного проекта перекрытие над вторым этажом тоже монолитное или по деревянным балкам?
Юлия
Над вторым этажом перекрытие так же монолитное.
Ольга
Какова высота дома в коньке?
Эллада
Высота дома в коньке 9240 мм