
| Общая площадь | 127 м2 |
| Жилая площадь | 74.56 м2 |
| Площадь застройки | 110.76 м2 |
| Габариты | 9 x 9.5 м |
| Высота в коньке | 9200 м |
| Жилые комнаты 1 этажа, кроме гостиных | 1 шт |
| Спальни и жилые комнаты, кроме гостиных | 4 шт |
| С/у, ванны | 2 шт |
| Внешний вид: |
★★★★★ ★★★★★ |
| Планировки: |
★★★★★ ★★★★★ |
По данному проекту обзоров нет
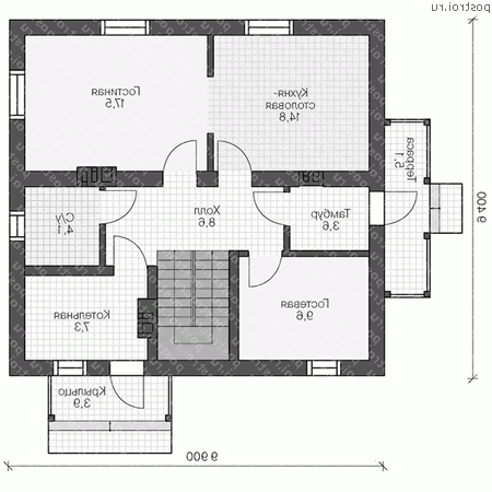
Архив обзоров1-й этаж, высота 2.8 м 
2-й этаж, высота 2.80 м 
Вид спереди
Вид слева
Вид справа
Вид сзади
| Материал: | Кол: | Ед.изм: | Коммент: |
|---|---|---|---|
| Строительный объём | 927.49 | м3 | |
| Площадь кровли | 156.89 | м2 | |
| Газобетон | 95.51 | м3 | 400 мм |
| Газобетон | 11.92 | м3 | 150 мм |
| Газобетон | 6.07 | м3 | 250 мм |
| Бетон | 41.05 | м3 | В20 на фундамент |
| Кирпич полнотелый | 10.53 | м3 | вентканалы |
| Облицовка камнем | 10.56 | м2 |
Проект № V-133-1P
Проект № P-135-1P
Проект № V-137-1P
Проект № V-137-2PЦены на проекты, услуги и все прочие товары приведенные ниже актуальны на 06.05.2026.
| Комплек |
Цена (руб): |
|---|---|
| Архитектурно-строительные чертежи U-126-1P | 42 000 |
| Инженерные сети (ВК.ОВ) U-126-1P | 17 000 |
| Электронная копия проекта (pdf) U-126-1P | 7 000 |
Паспорт проекта и Доп. комплект чертежей без лицензии (копия для строителей) отдельно от основного комплекта не продаются.
Наталья
Сколько будет стоить коробка?
Юлия
очень ориентировочная стоимость - 2.8-3.1 млн рублей. по Московской области.
Наталья
Что входит в 2 200 000,00?
Юлия
на нашем сайте расположены баннеры разных строителей, которые предлагают свои услуги. Рекомендуем обратиться непосредственно к конкретной фирме.