
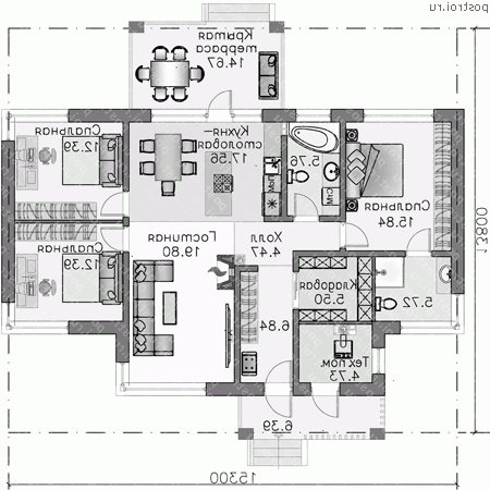
| Общая площадь | 121.5 м2 |
| Жилая площадь | 60.42 м2 |
| Габариты | 13.8 x 15.3 м |
| Жилые комнаты 1 этажа, кроме гостиных | 3 шт |
| Спальни и жилые комнаты, кроме гостиных | 3 шт |
| С/у, ванны | 2 шт |
| Сауна | Есть |
| Внешний вид: |
★★★★★ ★★★★★ |
| Планировки: |
★★★★★ ★★★★★ |
По данному проекту обзоров нет
Архив обзоров1-й этаж 
1-й этаж (вариант 2) 
Вид спереди
Вид слева
Вид справа
Вид сзади
Цены на проекты, услуги и все прочие товары приведенные ниже актуальны на 09.11.2025.
| Комплек |
Цена (руб): |
|---|---|
| Полный комплект чертежей T-120-2P | 43 000 |
| Архитектурно-строительные чертежи T-120-2P | 33 300 |
| Доп. комплект чертежей без лицензии (копия для строителей) T-120-2P | 5 000 |
| Паспорт проекта T-120-2P | 3 500 |
| Дополни |
Цена (руб): |
| Вариант системы отопления с теплым полом по заданию Заказчика (цена от) | 12 000 |
| Изменение типа перекрытий (цена от) | 15 000 |
| Строительство, материалы, консультация, смета | - |
| Изменение типа фундамента (цена от) | 25 000 |
Паспорт проекта и Доп. комплект чертежей без лицензии (копия для строителей) отдельно от основного комплекта не продаются.