
| Общая площадь | 118.5 м2 |
| Жилая площадь | 80.63 м2 |
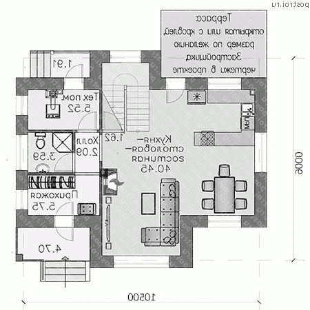
| Габариты | 9 x 10.5 м |
| Спальни и жилые комнаты, кроме гостиных | 3 шт |
| С/у, ванны | 2 шт |
| Внешний вид: |
★★★★★ ★★★★★ |
| Планировки: |
★★★★★ ★★★★★ |
По данному проекту обзоров нет
Архив обзоров1-й этаж, высота 2.75 м 
2-й этаж, высота 1.87 - 2.7 м 
Вид спереди
Вид слева
Вид справа
Вид сзади
| Материал: | Кол: | Ед.изм: | Коммент: |
|---|---|---|---|
| Штукатурка | 3.6 | м2 | |
| Газобетон | 66.7 | м3 | Наружные стены |
| Кирпич | 176 | м2 | лицевой |
| Кирпич | 176 | м2 | лицевой |
| Кирпич | 67.4 | м3 | Наружные стены кирпич (альтернативно) |
| Бетон | 7.8 | м3 | пол 1 го этажа |
| Облицовка камнем | 43 | м2 | цоколь |
| Битумная черепица | 168.5 | м2 | |
| Монолитная ж/б плита | 24.9 | м3 | Фундамент |
| Монолитная ж/б плита | 10.97 | м3 | Перекрытие над 1 этажом |
Цены на проекты, услуги и все прочие товары приведенные ниже актуальны на 09.11.2025.
| Комплек |
Цена (руб): |
|---|---|
| Полный комплект чертежей T-118-1P | 42 000 |
| Архитектурно-строительные чертежи T-118-1P | 32 300 |
| Доп. комплект чертежей без лицензии (копия для строителей) T-118-1P | 5 000 |
| Паспорт проекта T-118-1P | 3 500 |
| Дополни |
Цена (руб): |
| Изменение типа фундамента | 25 000 |
| Изменение типа перекрытий | 15 000 |
| Вариант системы отопления с теплым полом по заданию Заказчика (цена от) | 12 000 |
| Паспорт с изменениями | 13 500 |
| Строительство, материалы, консультация, смета | - |
Паспорт проекта и Доп. комплект чертежей без лицензии (копия для строителей) отдельно от основного комплекта не продаются.
ариф
Какой расход материалов на фундамент и кровлю. хотелось увидеть разрез
Эллада
Добый день! С расходом материалов можно ознакомиться во вкладке "материалы".