
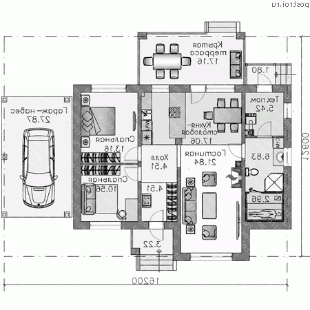
| Общая площадь | 97.9 м2 |
| Жилая площадь | 23.72 м2 |
| Габариты | 12.6 x 16.2 м |
| Жилые комнаты 1 этажа, кроме гостиных | 2 шт |
| Спальни и жилые комнаты, кроме гостиных | 2 шт |
| С/у, ванны | 1 шт |
| Сауна | Есть |
| Гараж | Есть |
| Внешний вид: |
★★★★★ ★★★★★ |
| Планировки: |
★★★★★ ★★★★★ |
По данному проекту обзоров нет
Архив обзоров1-й этаж 
Вид спереди
Вид слева
Вид справа
Вид сзади
Цены на проекты, услуги и все прочие товары приведенные ниже актуальны на 09.11.2025.
| Комплек |
Цена (руб): |
|---|---|
| Полный комплект чертежей T-097-2P | 37 400 |
| Архитектурно-строительные чертежи T-097-2P | 27 700 |
| Доп. комплект чертежей без лицензии (копия для строителей) T-097-2P | 5 000 |
| Паспорт проекта T-097-2P | 3 500 |
| Дополни |
Цена (руб): |
| Изменение типа фундамента | 15 000 |
| Строительство, материалы, консультация, смета | - |
| Изменение типа фундамента (цена от) | 25 000 |
Паспорт проекта и Доп. комплект чертежей без лицензии (копия для строителей) отдельно от основного комплекта не продаются.