
| Общая площадь | 34.54 м2 |
| Площадь застройки | 61 м2 |
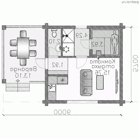
| Габариты | 5.7 x 9 м |
| С/у, ванны | 1 шт |
| Сауна | Есть |
| Внешний вид: |
★★★★★ ★★★★★ |
| Планировки: |
★★★★★ ★★★★★ |
По данному проекту обзоров нет
Архив обзоров1-й этаж, высота 2.57 м 
Вид спереди
Вид слева
Вид справа
Вид сзади
| Материал: | Кол: | Ед.изм: | Коммент: |
|---|---|---|---|
| Строительный объём | 93.21 | м3 | |
| Брус | 1.7 | м3 | |
| Бревно | 16 | м3 | d220 |
| Искусственный камень | 14.47 | м2 | |
| Вагонка | 18.94 | м2 | |
| Бетон | 15.5 | м3 | В 25 W4 F 150 фундамент |
| Пенополистерол | 82.56 | м2 | |
| Черепица | 78.29 | м2 | |
| Фанера | 78.29 | м2 |
Цены на проекты, услуги и все прочие товары приведенные ниже актуальны на 22.03.2026.
| Комплек |
Цена (руб): |
|---|---|
| Архитектурно-строительные чертежи T-034-1D | 13 900 |
Паспорт проекта и Доп. комплект чертежей без лицензии (копия для строителей) отдельно от основного комплекта не продаются.