
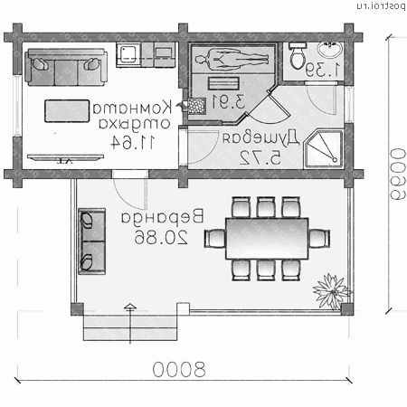
| Общая площадь | 32.4 м2 |
| Габариты | 6.6 x 8 м |
| С/у, ванны | 1 шт |
| Сауна | Есть |
| Внешний вид: |
★★★★★ ★★★★★ |
| Планировки: |
★★★★★ ★★★★★ |
По данному проекту обзоров нет
Архив обзоров1-й этаж 
Вид спереди
Вид слева
Вид справа
Вид сзади
Цены на проекты, услуги и все прочие товары приведенные ниже актуальны на 09.05.2026.
| Комплек |
Цена (руб): |
|---|---|
| Архитектурно-строительные чертежи T-033-1D | 13 000 |
Паспорт проекта и Доп. комплект чертежей без лицензии (копия для строителей) отдельно от основного комплекта не продаются.