
| Общая площадь | 263.80 м2 |
| Габариты | 15.5 x 14.78 м |
| Второй свет | Есть |
| Жилые комнаты 1 этажа, кроме гостиных | 1 шт |
| Спальни и жилые комнаты, кроме гостиных | 4 шт |
| С/у, ванны | 3 шт |
| Внешний вид: |
★★★★★ ★★★★★ |
| Планировки: |
★★★★★ ★★★★★ |
По данному проекту обзоров нет
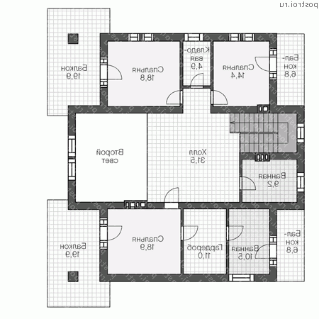
Архив обзоров1-й этаж, высота 3.04 м 
2-й этаж, высота 3.23 м 
Вид спереди
Вид слева
Вид справа
Вид сзади
Проект № U-446-1KЦены на проекты, услуги и все прочие товары приведенные ниже актуальны на 08.11.2025.
| Комплек |
Цена (руб): |
|---|---|
| Архитектурно-строительные чертежи R-263-1P | 42 000 |
| Доп. комплект чертежей без лицензии (копия для строителей) R-263-1P | 2 000 |
| Паспорт проекта R-263-1P | 5 000 |
| Дополни |
Цена (руб): |
| Приложение: перекрытия сборные ж/б плиты | 5 000 |
| Добавить гараж (цена от) | 20 000 |
| Изменение типа перекрытий (цена от) | 20 000 |
| Изменение типа фундамента (цена от) | 20 000 |
Паспорт проекта и Доп. комплект чертежей без лицензии (копия для строителей) отдельно от основного комплекта не продаются.