
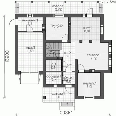
| Общая площадь | 214 м2 |
| Жилая площадь | 105.54 м2 |
| Площадь застройки | 203.34 м2 |
| Габариты | 14.3 x 12.5 м |
| Высота в коньке | 8840 м |
| Цоколь | Есть |
| Жилые комнаты 1 этажа, кроме гостиных | 2 шт |
| Спальни и жилые комнаты, кроме гостиных | 6 шт |
| С/у, ванны | 3 шт |
| Гараж | Есть |
| Внешний вид: |
★★★★★ ★★★★★ |
| Планировки: |
★★★★★ ★★★★★ |
По данному проекту обзоров нет
Архив обзоровПодвал, высота 2.58 м 
1-й этаж, высота 2.88 м 
2-й этаж, высота 2.02-4.62 м 
Вид спереди
Вид слева
Вид справа
Вид сзади
| Материал: | Кол: | Ед.изм: | Коммент: |
|---|---|---|---|
| Строительный объём | 1323.91 | м3 | |
| Площадь кровли | 280.53 | м2 | |
| Площадь террасы, крыльца и балконов | 44.85 | м2 |
Проект № U-187-1P
Проект № V-195-1P
Проект № V-234-1P
Проект № U-187-2P
Проект № U-187-3P
Проект № P-220-1K
Проект № U-187-4P
Проект № V-195-1K
Проект № V-195-2K
Проект № V-195-2P
Проект № V-195-3K
Проект № V-197-1K
Проект № V-240-1K
Проект № P-190-1K
Проект № U-187-5P
Проект № V-195-3P
Проект № X-192-1P
Проект № X-218-1P
Проект № P-159-1PЦены на проекты, услуги и все прочие товары приведенные ниже актуальны на 06.05.2026.
| Комплек |
Цена (руб): |
|---|---|
| Архитектурно-строительные чертежи R-213-1P | 53 000 |
| Инженерные сети (ВК.ОВ) R-213-1P | 20 000 |
| Электронная копия проекта (pdf) R-213-1P | 7 000 |
Паспорт проекта и Доп. комплект чертежей без лицензии (копия для строителей) отдельно от основного комплекта не продаются.