
| Общая площадь | 130.62 м2 |
| Габариты | 9.2 x 6 м |
| Мансарда | Есть |
| Спальни и жилые комнаты, кроме гостиных | 4 шт |
| С/у, ванны | 1 шт |
| Внешний вид: |
★★★★★ ★★★★★ |
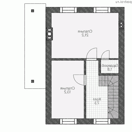
| Планировки: |
★★★★★ ★★★★★ |
По данному проекту обзоров нет
Архив обзоров1-й этаж, высота 2.80 м 
2-й этаж, высота 2.80 м 
Мансарда, высота 1.6 - 2.8 м 
Вид спереди
Вид слева
Вид справа
Вид сзади
Цены на проекты, услуги и все прочие товары приведенные ниже актуальны на 08.11.2025.
| Комплек |
Цена (руб): |
|---|---|
| Архитектурно-строительные чертежи R-130-1P | 35 000 |
| Доп. комплект чертежей без лицензии (копия для строителей) R-130-1P | 2 000 |
| Паспорт проекта R-130-1P | 5 000 |
| Дополни |
Цена (руб): |
| Добавить гараж (цена от) | 20 000 |
| Изменение типа перекрытий (цена от) | 10 000 |
| Изменение типа фундамента (цена от) | 10 000 |
Паспорт проекта и Доп. комплект чертежей без лицензии (копия для строителей) отдельно от основного комплекта не продаются.