
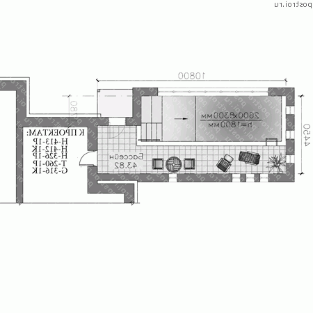
| Общая площадь | 66.36 м2 |
| Габариты | 4.45 x 10.8 м |
| Бассейн | Есть |
| Внешний вид: |
★★★★★ ★★★★★ |
| Планировки: |
★★★★★ ★★★★★ |
По данному проекту обзоров нет
Архив обзоров1-й этаж, высота 2.8 м 
Вид спереди
Вид слева
Вид справа
Вид сзади
Цены на проекты, услуги и все прочие товары приведенные ниже актуальны на 07.05.2026.
| Комплек |
Цена (руб): |
|---|---|
| Архитектурно-строительные чертежи P-044-1K | 37 100 |
Паспорт проекта и Доп. комплект чертежей без лицензии (копия для строителей) отдельно от основного комплекта не продаются.