
| Общая площадь | 218.5 м2 |
| Жилая площадь | 117.49 м2 |
| Габариты | 13.2 x 11.4 м |
| Спальни и жилые комнаты, кроме гостиных | 4 шт |
| С/у, ванны | 4 шт |
| Гараж | Есть |
| Внешний вид: |
★★★★★ ★★★★★ |
| Планировки: |
★★★★★ ★★★★★ |
По данному проекту обзоров нет
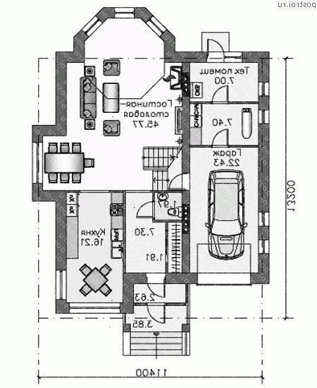
Архив обзоров1-й этаж, высота 3.0 м 
2-й этаж, высота 2.7 м 
Вид спереди
Вид слева
Вид справа
Вид сзади
| Материал: | Кол: | Ед.изм: | Коммент: |
|---|---|---|---|
| Штукатурка | 10.2 | м2 | |
| Газобетон | 113 | м3 | наружные стены/альтернативно |
| Кирпич | 291.2 | м2 | лицевой |
| Кирпич | 114.4 | м3 | наружные стены |
| Облицовка камнем | 23.9 | м2 | |
| Керамическая черепица | 232 | м2 | |
| Монолитная ж/б плита | 32.4 | м3 | фундамент( 200 мм) |
| Монолитная ж/б плита | 16.5 | м3 | перекрытие |
Цены на проекты, услуги и все прочие товары приведенные ниже актуальны на 09.11.2025.
| Комплек |
Цена (руб): |
|---|---|
| Полный комплект чертежей N-218-1K | 59 000 |
| Архитектурно-строительные чертежи N-218-1K | 48 300 |
| Доп. комплект чертежей без лицензии (копия для строителей) N-218-1K | 5 000 |
| Паспорт проекта N-218-1K | 3 500 |
| Дополни |
Цена (руб): |
| Изменение типа фундамента | 25 000 |
| Изменение типа перекрытий | 15 000 |
| Вариант системы отопления с теплым полом по заданию Заказчика (цена от) | 15 000 |
| Паспорт с изменениями | 13 500 |
| Строительство, материалы, консультация, смета | - |
Паспорт проекта и Доп. комплект чертежей без лицензии (копия для строителей) отдельно от основного комплекта не продаются.