
| Общая площадь | 215.92 м2 |
| Жилая площадь | 74.01 м2 |
| Площадь застройки | 125.87 м2 |
| Габариты | 11.1 x 10.2 м |
| Высота в коньке | 8900 м |
| Цоколь | Есть |
| Спальни и жилые комнаты, кроме гостиных | 3 шт |
| С/у, ванны | 4 шт |
| Сауна | Есть |
| Внешний вид: |
★★★★★ ★★★★★ |
| Планировки: |
★★★★★ ★★★★★ |
По данному проекту обзоров нет
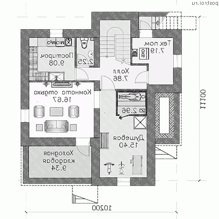
Архив обзоровЦоколь, высота 2.54 м 
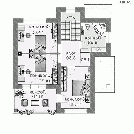
1-й этаж, высота 3.0 м 
2-й этаж, высота 2.85 м 
Вид спереди
Вид слева
Вид справа
Вид сзади
| Материал: | Кол: | Ед.изм: | Коммент: |
|---|---|---|---|
| Строительный объём | 1001.65 | м3 | |
| Штукатурка | 32 | м2 | цоколь |
| Штукатурка | 269.8 | м2 | наружные стены |
| Газобетон | 99.2 | м3 | Для наружных стен 375 мм ,альтернативно |
| Искусственный камень | 51.7 | м2 | цоколь |
| Бетон | 30 | м3 | кл В 25, W 4, F 100 Фундамент |
| Бетон | 46.3 | м3 | кл В 20 цокольный этаж |
| Утеплитель наружных стен | 264.5 | м2 | минеральная вата КАВИТИ БАТТС |
| Кирпич пустотелый | 100.5 | м3 | Для наружных стен М 100 |
| Черепица | 168.4 | м2 | натуральная или битумная черепица |
Цены на проекты, услуги и все прочие товары приведенные ниже актуальны на 09.11.2025.
| Комплек |
Цена (руб): |
|---|---|
| Полный комплект чертежей N-212-1P | 55 000 |
| Архитектурно-строительные чертежи N-212-1P | 45 300 |
| Доп. комплект чертежей без лицензии (копия для строителей) N-212-1P | 5 000 |
| Паспорт проекта N-212-1P | 3 500 |
| Дополни |
Цена (руб): |
| Изменение типа фундамента | 25 000 |
| Изменение типа перекрытий | 15 000 |
| Вариант системы отопления с теплым полом по заданию Заказчика (цена от) | 15 000 |
| Паспорт с изменениями | 13 500 |
| Строительство, материалы, консультация, смета | - |
Паспорт проекта и Доп. комплект чертежей без лицензии (копия для строителей) отдельно от основного комплекта не продаются.
Остапушка
Какая высота цокольного, 1-го и 2-го этажа? Возможна замена фундамента, в соответствии с геологией участка?
Наталья
цоколь -2.54м , 1 этаж - 3.0м 2 этаж- 2.85м, Замена фундамента возможна, стоимость такой доработки по этому проекту 25000 рублей к стоимости типового проекта