
| Общая площадь | 204.47 м2 |
| Жилая площадь | 96.57 м2 |
| Площадь застройки | 229.5 м2 |
| Габариты | 15.3 x 15.3 м |
| Мансарда | Есть |
| Жилые комнаты 1 этажа, кроме гостиных | 1 шт |
| Спальни и жилые комнаты, кроме гостиных | 5 шт |
| С/у, ванны | 3 шт |
| Сауна | Есть |
| Гараж | Есть |
| Внешний вид: |
★★★★★ ★★★★★ |
| Планировки: |
★★★★★ ★★★★★ |
По данному проекту обзоров нет
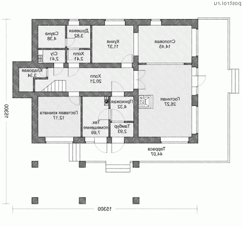
Архив обзоров1-й этаж, высота 3.02 м 
Мансарда, высота 2.11 - 4.25 м 
Вид спереди
Вид слева
Вид справа
Вид сзади
| Материал: | Кол: | Ед.изм: | Коммент: |
|---|---|---|---|
| Строительный объём | 1125 | м3 |
Цены на проекты, услуги и все прочие товары приведенные ниже актуальны на 24.03.2026.
| Комплек |
Цена (руб): |
|---|---|
| Архитектурно-строительные чертежи N-204-1K | 40 000 |
| Доп. комплект чертежей без лицензии (копия для строителей) N-204-1K | 4 000 |
| Паспорт проекта N-204-1K | 4 500 |
| Дополни |
Цена (руб): |
| Строительство, материалы, консультация, смета | - |
Паспорт проекта и Доп. комплект чертежей без лицензии (копия для строителей) отдельно от основного комплекта не продаются.