
| Общая площадь | 136.67 м2 |
| Жилая площадь | 85.68 м2 |
| Площадь застройки | 108.78 м2 |
| Габариты | 10.2 x 14.25 м |
| Высота в коньке | 8115 м |
| Жилые комнаты 1 этажа, кроме гостиных | 1 шт |
| Спальни и жилые комнаты, кроме гостиных | 4 шт |
| С/у, ванны | 3 шт |
| Гараж | Есть |
| Внешний вид: |
★★★★★ ★★★★★ |
| Планировки: |
★★★★★ ★★★★★ |
По данному проекту обзоров нет
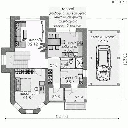
Архив обзоров1-й этаж, высота 2.75 м 
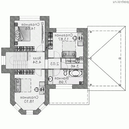
2-й этаж, высота 2.7 м 
Вид спереди
Вид слева
Вид справа
Вид сзади
| Материал: | Кол: | Ед.изм: | Коммент: |
|---|---|---|---|
| Строительный объём | 618.5 | м3 | |
| Площадь кровли | 155.7 | м2 | |
| Штукатурка | 229.1 | м2 | |
| Газобетон | 94.4 | м3 | наружные стены/альтернативно |
| Кирпич | 95.7 | м3 | наружные стены |
| Искусственный камень | 16.7 | м2 | цоколь |
| Минераловата | 251.8 | м2 | |
| Бетон | 28 | м3 | Фундамент В 25 |
Цены на проекты, услуги и все прочие товары приведенные ниже актуальны на 25.03.2026.
| Комплек |
Цена (руб): |
|---|---|
| Полный комплект чертежей N-137-1P | 66 100 |
| Архитектурно-строительные чертежи N-137-1P | 47 200 |
| Электронная копия проекта (pdf) N-137-1P | 7 000 |
Паспорт проекта и Доп. комплект чертежей без лицензии (копия для строителей) отдельно от основного комплекта не продаются.