
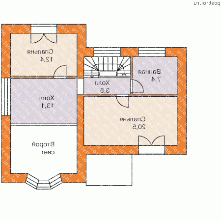
| Общая площадь | 131.39 м2 |
| Жилая площадь | 73.8 м2 |
| Площадь застройки | 114.97 м2 |
| Габариты | 9.6 x 11.4 м |
| Второй свет | Есть |
| Жилые комнаты 1 этажа, кроме гостиных | 1 шт |
| Спальни и жилые комнаты, кроме гостиных | 3 шт |
| С/у, ванны | 2 шт |
| Внешний вид: |
★★★★★ ★★★★★ |
| Планировки: |
★★★★★ ★★★★★ |
По данному проекту обзоров нет
Архив обзоров1-й этаж, высота 3.0 м 
2-й этаж, высота 2.75 м 
Вид спереди
Вид слева
Вид справа
Вид сзади
| Материал: | Кол: | Ед.изм: | Коммент: |
|---|---|---|---|
| Строительный объём | 896.42 | м3 | |
| Утеплитель | 228.16 | м2 | минераловатные плиты (стены) |
| Утеплитель | 121.8 | м2 | пенополистирол (пол 1-го этажа) |
| Площадь кровли | 234.5 | м2 | |
| Газобетон | 85.6 | м3 | |
| Облицовочный кирпич | 228.16 | м2 | |
| Кирпич | 14.8 | м2 | внутренные несущие стены (альтернативно газобетон 375 мм) |
| Кирпич | 51.99 | м3 | полнотелый кирпич М150 (цоколь фундамент) |
| Кирпич | 86.7 | м3 | для наружных стен альтернативно |
| Бетон | 43.2 | м3 | Фундамент |
| Бетон | 17 | м3 | Перекрытия |
Проект № H-144-1PЦены на проекты, услуги и все прочие товары приведенные ниже актуальны на 09.02.2026.
| Комплек |
Цена (руб): |
|---|---|
| Полный комплект чертежей N-131-1P | 45 200 |
| Архитектурно-строительные чертежи N-131-1P | 35 500 |
| Доп. комплект чертежей без лицензии (копия для строителей) N-131-1P | 5 000 |
| Паспорт проекта N-131-1P | 3 500 |
| Дополни |
Цена (руб): |
| Вариант системы отопления с теплым полом по заданию Заказчика (цена от) | 12 000 |
| Изменение типа фундамента | 25 000 |
| Изменение типа перекрытий | 15 000 |
| Паспорт с изменениями | 13 500 |
| Строительство, материалы, консультация, смета | - |
Паспорт проекта и Доп. комплект чертежей без лицензии (копия для строителей) отдельно от основного комплекта не продаются.
Дмитрий
Добрый день.
А можно поподробней по расходу основных материалов?
Юлия
все что можем предоставить до покупки проекта - выложили на сайт. Остальные спецификации касаются конструкторской части и не могут быть представлены.
Андрей
День добрый! Подскажите, при строительстве этого дома из кирпича фундаментная плита меняет свои размеры или остаётся как при строительстве из газобетона?
Эллада
проект рассчитан на два варианта стенового материала: газобетон и кирпич, а также приведено несколько вариантов наружных стен в зависимости от климатической зоны. Фундамент при этом не изменяется!
Галина
Можно ли отодвинуть заднюю стенку, чтобы увеличить санузел и холл?
Эллада
Добрый день! В проект, к сожалению, изменения не вносятся. Но Вы можете передвинуть стену на стадии строительства при помощи квалифицированных рабочих. Следует учесть, что при переносе стены - увеличится фундамент, перекрытия и форма кровли.