
| Общая площадь | 485.89 м2 |
| Жилая площадь | 134.58 м2 |
| Площадь застройки | 258.55 м2 |
| Габариты | 15.9 x 14.4 м |
| Цоколь | Есть |
| Второй свет | Есть |
| Жилые комнаты 1 этажа, кроме гостиных | 1 шт |
| Спальни и жилые комнаты, кроме гостиных | 5 шт |
| С/у, ванны | 5 шт |
| Сауна | Есть |
| Бильярд | Есть |
| Гараж | Есть |
| Внешний вид: |
★★★★★ ★★★★★ |
| Планировки: |
★★★★★ ★★★★★ |
По данному проекту обзоров нет
Архив обзоровЦоколь, высота 2.55 м 
1-й этаж, высота 3.0 м 
2-й этаж, высота 2.85 м 
Вид спереди
Вид слева
Вид справа
Вид сзади
| Материал: | Кол: | Ед.изм: | Коммент: |
|---|---|---|---|
| Строительный объём | 2025 | м3 | |
| Утеплитель | 283.6 | м2 | Минвата "Кавити Баттс". |
| Утеплитель | 160.2 | м2 | Экстудированный понополистирол 100мм, стены монолитного фундамента (утепление снаружи). |
| Утеплитель | 186.4 | м2 | Экстудированный понополистирол 100мм, по фундаментной плите. |
| Утеплитель | 168 | м2 | Пенополистерол 100мм, пол 1-го этажа. |
| Утеплитель | 101.3 | м2 | Минераловата 70мм, на перегородки. |
| Площадь кровли | 349.5 | м2 | Битумная черепица "Тегола", тип "Мозаика". |
| Штукатурка | 60 | м2 | Оштукатуривание фасада. |
| Газобетон | 106.3 | м3 | На наружные стены, альтернативно кирпич пустотный М100 - 107.7 м3. |
| Газобетон | 44.9 | м3 | Гозобетон толщ. 375мм на внутренние стены, альтернативно кирпич пустотный М100 - 45.5 м3. |
| Облицовочный кирпич | 252 | м2 | Кирпич лицевой М150 на наружные стены. "Терка" светлый бежевый "Крем Иней". |
| Кирпич | 14.2 | м3 | Кирпич пустотный М100 (стены эркера), альтернативно минвата "Кавити Баттс" - 37.5 м2. |
| Искусственный камень | 44.5 | м2 | Искусственный камень "Камрок" на цоколь |
| Искусственный камень | 10 | м2 | Искусственный камень "Камрок" на наружные стены. "Бут" округлой формы. |
| Гипсокартонные листы | 70 | м2 | На перегородки, альтернативно газобетон толщ. 100мм - 10.1 м3. |
| Гипсокартонные листы | 31.3 | м2 | Влагостойкие, на перегородки (с/у). |
| Бетон | 115 | м3 | Фундамент |
Цены на проекты, услуги и все прочие товары приведенные ниже актуальны на 09.11.2025.
| Комплек |
Цена (руб): |
|---|---|
| Полный комплект чертежей L-414-1P | 80 200 |
| Архитектурно-строительные чертежи L-414-1P | 69 500 |
| Доп. комплект чертежей без лицензии (копия для строителей) L-414-1P | 5 000 |
| Паспорт проекта L-414-1P | 3 500 |
| Дополни |
Цена (руб): |
| Приложение: перекрытия сборные ж/б плиты | 5 000 |
| Приложение: перекрытие по деревянным балкам над 2-м этажом | 5 000 |
| Изменение типа фундамента | 25 000 |
| Изменение типа перекрытий | 15 000 |
| Вариант системы отопления с теплым полом по заданию Заказчика (цена от) | 15 000 |
| Паспорт с изменениями | 13 500 |
| Строительство, материалы, консультация, смета | - |
Паспорт проекта и Доп. комплект чертежей без лицензии (копия для строителей) отдельно от основного комплекта не продаются.
юлия
Возможно указать размеры гаражных ворот?
Юлия
~ 2.7х2.1 метра
юлия
Возможны ли изменения проекта? Сколько это будет стоить?
Юлия
если доработки касаются перегородок или увеличения/уменьшения оконных и дверных проемов, то это проще сделать на стадии строительства. Если доработки касаются смещения несущих стен (на плане толстые линии), то это удорожаем проект в несколько раз, так как это уже близко к индивидуальному проектированию. Для более полной консультации по изменениям в проекте лучше обращаться по контактным телефонам
Alexander
Добрый день! Очень интересует в данном проекте конструкция цокольного этажа, какой материал стен используется для возведения цоколя по проекту?
Юлия
Стены цоколя - монолит.
ksp
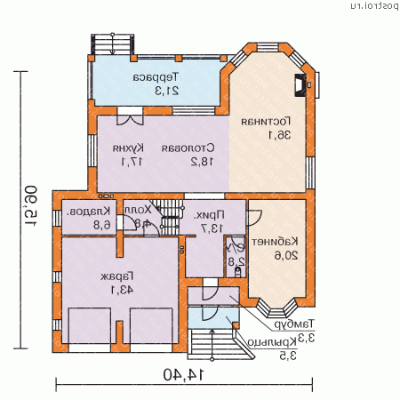
Не могу понять, как площадь гаража может быть 43,1 кв.м.? Если взять толщину внешних несущих за 0,5 м, то выходит размер каждого машиноместа 3х6 м, итого 36 кв.м. + копейки.
Как площадь кабинета может быть такой? Там же тогда длина выходит 6,6 м! Следовательно, дом не влезает в габарит 15,9 м!
Как такое понимать?
Эллада
по проекту толщина внутренних несущих стен 0,4м.
Размеры гаража: 3,3*6,2+ 3,22*6,5+0,4*6,5 = 43,08м2
Кабинет: 5,8*3,4=19,72м2 + Sэркера 0,91м2 - 20,63м2
15,9м - это длина дома без эркера в гостиной, с эркером это будет 18,2м
Konstantin
Проект очень понравился, подскажите, пожалуйста, подойдет ли данный проект для моего участка 20м. по фасаду на 36м в боковину? Не будет ли проблем при согласовании в местной архитектуре?
Эллада
габариты дома с учетом наружных стен - 18,2 х 14,9.
По нормам отступы от соседских заборов должны быть по 3м с каждой стороны, получается, что Вам не хватает 90 см, но думаю из-за этого проблем быть не должно.