
| Общая площадь | 214 м2 |
| Жилая площадь | 141 м2 |
| Площадь застройки | 173 м2 |
| Габариты | 13.33 x 16.23 м |
| Жилые комнаты 1 этажа, кроме гостиных | 2 шт |
| Спальни и жилые комнаты, кроме гостиных | 6 шт |
| С/у, ванны | 3 шт |
| Сауна | Есть |
| Зимний сад | Есть |
| Внешний вид: |
★★★★★ ★★★★★ |
| Планировки: |
★★★★★ ★★★★★ |
По данному проекту обзоров нет
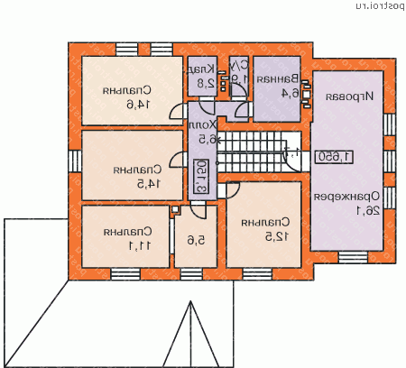
Архив обзоров1-й этаж 
2-й этаж 
Вид спереди
Вид слева
Вид справа
Вид сзади
Цены на проекты, услуги и все прочие товары приведенные ниже актуальны на 10.11.2025.
| Комплек |
Цена (руб): | Цена со скидкой 10%: |
|---|---|---|
| Комплект Застройщика K-214-1P | 43 000 | 38 700 |
| Полный комплект чертежей K-214-1P | 34 000 | 30 600 |
| Архитектурно-строительные чертежи K-214-1P | 30 000 | 27 000 |
| Доп. комплект чертежей без лицензии (копия для строителей) K-214-1P | 4 000 | 3 600 |
| Паспорт проекта K-214-1P | 4 000 | 3 600 |
| Дополни |
Цена (руб): | |
| Строительство, материалы, консультация, смета | - |
Паспорт проекта и Доп. комплект чертежей без лицензии (копия для строителей) отдельно от основного комплекта не продаются.
Строитель
Понравился проект, но какая высота его.
Эллада
высота 1-го этажа - 2850 мм, высота 2-го этажа - 2700 мм, высота дома по коньку - 9950 мм
Строитель
Хотелось бы приобрести его но прежде подъехать к вам и посмотреть проект
Эллада
вы можете ознакомиться с выдержкой из проекта у нас в офисе. Адрес и часы работы указаны на сайте в разделе "контакты"