
| Общая площадь | 144.40 м2 |
| Жилая площадь | 69.80 м2 |
| Габариты | 13.2 x 10.5 м |
| Высота в коньке | 9000 м |
| Жилые комнаты 1 этажа, кроме гостиных | 1 шт |
| Спальни и жилые комнаты, кроме гостиных | 4 шт |
| С/у, ванны | 2 шт |
| Гараж | Есть |
| Внешний вид: |
★★★★★ ★★★★★ |
| Планировки: |
★★★★★ ★★★★★ |
По данному проекту обзоров нет
Архив обзоров1-й этаж, высота 2.93 м 
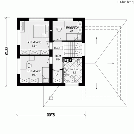
2-й этаж, высота 2.92 м 
Вид спереди
Вид слева
Вид справа
Вид сзади
Цены на проекты, услуги и все прочие товары приведенные ниже актуальны на 10.11.2025.
| Комплек |
Цена (руб): |
|---|---|
| Комплект Застройщика I-144-1P | 77 900 |
| Полный комплект чертежей I-144-1P | 67 800 |
| Архитектурно-строительные чертежи I-144-1P | 52 800 |
| Доп. комплект чертежей без лицензии (копия для строителей) I-144-1P | 3 000 |
| Паспорт проекта I-144-1P | 5 000 |
Паспорт проекта и Доп. комплект чертежей без лицензии (копия для строителей) отдельно от основного комплекта не продаются.