
| Общая площадь | 306.5 м2 |
| Жилая площадь | 114.12 м2 |
| Габариты | 17.1 x 17.1 м |
| Второй свет | Есть |
| Жилые комнаты 1 этажа, кроме гостиных | 1 шт |
| Спальни и жилые комнаты, кроме гостиных | 4 шт |
| С/у, ванны | 3 шт |
| Гараж | Есть |
| Внешний вид: |
★★★★★ ★★★★★ |
| Планировки: |
★★★★★ ★★★★★ |
По данному проекту обзоров нет
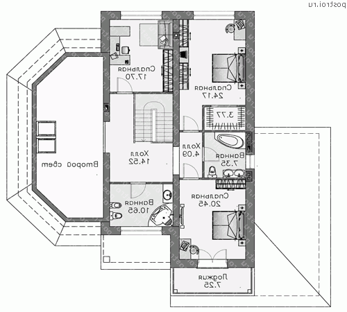
Архив обзоров1-й этаж, высота 3.0 м 
2-й этаж, высота 2.95 м 
Вид спереди
Вид слева
Вид справа
Вид сзади
| Материал: | Кол: | Ед.изм: | Коммент: |
|---|---|---|---|
| Штукатурка | 157.7 | м2 | |
| Газобетон | 129 | м3 | наружные стены( альтернативно) |
| Кирпич | 106 | м2 | лицевой |
| Кирпич | 130.7 | м3 | наружные стены |
| Вагонка | 79.6 | м2 | |
| Бетон | 61 | м3 | Фундамент |
| Керамическая черепица | 364 | м2 | |
| Монолитная ж/б плита | 39.7 | м3 | Перекрытия |
| Монолитная ж/б плита | 39.7 | м3 | Перекрытия |
Цены на проекты, услуги и все прочие товары приведенные ниже актуальны на 10.11.2025.
| Комплек |
Цена (руб): |
|---|---|
| Полный комплект чертежей H-306-1K | 69 200 |
| Архитектурно-строительные чертежи H-306-1K | 58 500 |
| Доп. комплект чертежей без лицензии (копия для строителей) H-306-1K | 5 000 |
| Паспорт проекта H-306-1K | 3 500 |
| Дополни |
Цена (руб): |
| Приложение: фундамент ленточный из сборных Ж/Б блоков | 5 000 |
| Изменение типа фундамента | 25 000 |
| Изменение типа перекрытий | 15 000 |
| Приложение: перекрытия сборные ж/б плиты | 5 000 |
| Вариант системы отопления с теплым полом по заданию Заказчика (цена от) | 15 000 |
| Паспорт с изменениями | 13 500 |
| Строительство, материалы, консультация, смета | - |
Паспорт проекта и Доп. комплект чертежей без лицензии (копия для строителей) отдельно от основного комплекта не продаются.