Проект № h-147-1p ЗЕРКАЛЬНЫЙ

H-147-1P проект двухэтажного дома из газобетона с гаражом размером 12 на 15
проект
H-147-1P
ЦЕНА

50 700 руб.

Купить проект ВЕРСИЯ ДЛЯ ПЕЧАТИ


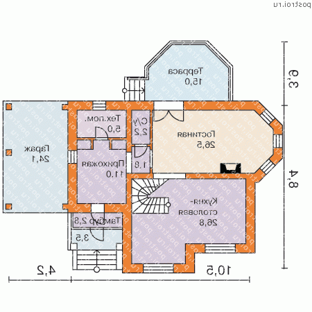
Общая площадь146.9 м2
Жилая площадь69.2 м2
Площадь застройки159.2 м2
Габариты12.3 x 14.7 м
Второй светЕсть
Спальни и жилые комнаты, кроме гостиных3 шт
С/у, ванны2 шт
ГаражЕсть


РЕЙТИНГ
★★★★★
★★★★★
(2 оценки):
Внешний вид:
★★★★★
★★★★★
Планировки:
★★★★★
★★★★★


ОБЗОРЫ ПО ПРОЕКТУ:

По данному проекту обзоров нет

Архив обзоров

АКЦИИ НА ЭТОТ ПРОЕКТ:
Приехав к нам в офис - Вы можете:
  - сразу его приобрести.
Перед приездом обязательно забронируйте проект по телефону.
На этот проект предусмотрена бесплатная доставка (только на территории РФ).

МАТЕРИАЛЫ ДЛЯ СТРОИТЕЛЬСТВА ДОМА:
Фундамент - мелкозаглубленная монолитная ж/б плита
Наружные стены - газобетон или кирпич (альтернативно)
Перекрытия - монолитные ж/б
Покрытие кровли - битумная черепица (металлочерепица или натуральная - альтернативно)
Наружная отделка - облицовочный кирпич, декоративная штукатурка
Наружная отделка цоколя - искусственный камень
РАСХОД ОСНОВНЫХ МАТЕРИАЛОВ:
Материал:Кол:Ед.изм:Коммент:
Строительный объём 675 м3
Утеплитель 272 м2 на стены, Рокволл
Утеплитель 98.1 м2 пенополистирол, пол 1-го этажа
Площадь кровли 225 м2
Газобетон 102.1 м3 толщ 375 мм
Облицовочный кирпич 272.4 м2
Кирпич 22.7 м3 М 150, внутр несущие стены
Кирпич 103.5 м3 наружные стены/альтернативно
Кирпич 103.5 м3 наружные стены/альтернативно
Площадь перегородок 49.2 м2
Бетон 27.2 м3

ВАРИАНТЫ ПРОЕКТА И ПОХОЖИЕ

Зеркальный вариант
50 700 руб

Вариант дома из кирпича без гаража большей площади
СТОИМОСТЬ ПРОЕКТА

Цены на проекты, услуги и все прочие товары приведенные ниже актуальны на 13.05.2026.

Комплектация: Цена (руб):
Полный комплект чертежей H-147-1P 69 600
Архитектурно-строительные чертежи H-147-1P 50 700
Электронная копия проекта (pdf) H-147-1P 7 000

Паспорт проекта и Доп. комплект чертежей без лицензии (копия для строителей) отдельно от основного комплекта не продаются.

Купить проект



ФОРУМ И ОТЗЫВЫ ПО ПРОЕКТУ № H-147-1P
Anatoly

Может уточнить расчет на строймат. Газобетон - ? облицовка кирпич - ? крыша - ? фундамент обязательно монолит.плита? или ленточный монолит тоже подходит?

Юлия

данные по материалам обновлены. Фундамент по проекту монолитная плита, возможна разработка варианта ленточного монолитного.

SlavStroy

Возможно ли перенос стены тамбура ближе к ступеням входа?

Юлия

внешняя стена тамбура является перегородкой, которой можно манипулировать как угодно. Внутренняя стена тамбура (между ним и прихожей) - несущая, передвигать и убирать её нельзя.

SlavStroy

я заинтересовался Вашим проектом, какова ориентировочная стоимость строительства такого дома?

Юлия

Мы не занимаемся строительством, мы продаём готовые проекты домов.
Проекты продаются во все регионы РФ, а также в ближнее зарубежье. Цены везде разные. Рекомендую обратиться к строителям Вашего региона для уточнения этого вопроса.

SlavStroy

Очень жаль.... это значит- и крышу нужно переделывать ,если смещать несущую стену.

vasiliy

Подскажите,хочу преобрести данный проект, но строить предполагаю из керамических блоков Porotherm 51 c облицовкой кирпичом с вент. зазором (без утеплителя). Позволяет данный проект такую САМОСТОЯТЕЛЬНУЮ замену материалов или нет? и к чему это может привести?

Эллада

никаких конструктивных противоречий для такого варианта наружных стен нет. Вы можете осуществить эту замену самостоятельно на стадии строительства. В проекте дан расчет на два вида материалов (газобетон 375мм и керамический кирпич 380мм), а также 4 варианта наружных стен в зависимости от климатической зоны.

Copyright Postroi.ru © 2002-2026