
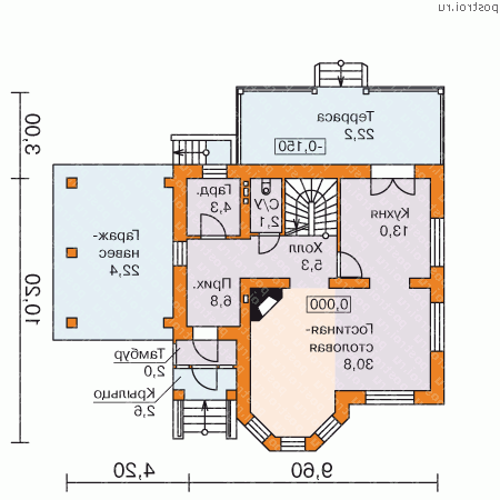
| Общая площадь | 203.48 м2 |
| Жилая площадь | 99.88 м2 |
| Площадь застройки | 159.78 м2 |
| Габариты | 10.2 x 9.6 м |
| Цоколь | Есть |
| Спальни и жилые комнаты, кроме гостиных | 3 шт |
| С/у, ванны | 5 шт |
| Сауна | Есть |
| Спорткомплекс | Есть |
| Гараж | Есть |
| Внешний вид: |
★★★★★ ★★★★★ |
| Планировки: |
★★★★★ ★★★★★ |
По данному проекту обзоров нет
Архив обзоровЦоколь, высота 2.5 м 
1-й этаж, высота 3.0 м 
2-й этаж, высота 2.85 м 
Вид спереди
Вид слева
Вид справа
Вид сзади
| Материал: | Кол: | Ед.изм: | Коммент: |
|---|---|---|---|
| Газобетон | 75.8 | м3 | альтернативно, толщиной 375 мм |
| Газобетон | 13.9 | м3 | альтернативно, толщ.375мм, на внутренние стены |
| Кирпич | 191.6 | м2 | кирпич лицевой М150 |
| Кирпич | 76.8 | м3 | пустотный М100 |
| Кирпич | 24.1 | м3 | пустотный М100 на внутренние стены |
| Бетон | 70.2 | м3 | В25 на фундамент, стены цоколя и крыльца |
| Пенополистерол | 71.8 | м2 | 100 мм, пол цокольного этажа |
Цены на проекты, услуги и все прочие товары приведенные ниже актуальны на 08.11.2025.
| Комплек |
Цена (руб): |
|---|---|
| Полный комплект чертежей H-131-2P | 55 800 |
| Архитектурно-строительные чертежи H-131-2P | 46 100 |
| Доп. комплект чертежей без лицензии (копия для строителей) H-131-2P | 5 000 |
| Паспорт проекта H-131-2P | 3 500 |
| Дополни |
Цена (руб): |
| Приложение: перекрытия сборные ж/б плиты | 5 000 |
| Изменение типа фундамента | 25 000 |
| Изменение типа перекрытий | 15 000 |
| Вариант системы отопления с теплым полом по заданию Заказчика (цена от) | 15 000 |
| Паспорт с изменениями | 13 500 |
| Строительство, материалы, консультация, смета | - |
Паспорт проекта и Доп. комплект чертежей без лицензии (копия для строителей) отдельно от основного комплекта не продаются.
Алекс
будет ли входить в полный комплект чертежей изменение типа перекрытий либо перекрытия сборные ж/б плиты? межу цокольными и 1-2 этажами?
Эллада
изменение типа перекрытий будет входить в полный комплект чертежей, если Вы его заказываете и оплачиваете, в стандартном комплекте перекрытия монолитные.
Александр
Здравствуйте. Скажите, пожалуйста какой требуется объём бетона для данного дома?
Эллада
газобетон толщиной 375 мм - 75.8 м3. Во вкладке "Материалы" представлена таблица расхода основных материалов.
Александр
Вы меня не поняли. Меня интересует объём бетона, который идёт на фундамент и стены цоколя и на монолитные железобетонные перекрытия!
Эллада
таблица расхода основных материалов содержит информацию для определения ориентировочной стоимости строительства. По информации, размещенной на сайте, любые строители в Вашем регионе смогут Вам подсказать примерный порядок цен за коробку/под ключ или фундамент. Подробная информация из конструкторского раздела: план фундаментов, разрезы по фундаментам, спецификации по фундаментам - предоставляются после покупки проекта.
Эллада
Разрез дома с высотами