
| Общая площадь | 306 м2 |
| Жилая площадь | 114 м2 |
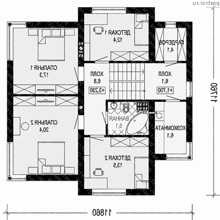
| Габариты | 11.86 x 11.76 м |
| Цоколь | Есть |
| Жилые комнаты 1 этажа, кроме гостиных | 1 шт |
| Спальни и жилые комнаты, кроме гостиных | 5 шт |
| С/у, ванны | 4 шт |
| Сауна | Есть |
| Гараж | Есть |
| Внешний вид: |
★★★★★ ★★★★★ |
| Планировки: |
★★★★★ ★★★★★ |
По данному проекту обзоров нет
Архив обзоровЦоколь, высота 2.61 м 
1-й этаж, высота 2.95 м 
2-й этаж, высота 2.92 м 
Вид спереди
Вид слева
Вид справа
Вид сзади
Цены на проекты, услуги и все прочие товары приведенные ниже актуальны на 07.05.2026.
| Комплек |
Цена (руб): |
|---|---|
| Комплект Застройщика G-306-2P | 106 900 |
| Полный комплект чертежей G-306-2P | 96 800 |
| Архитектурно-строительные чертежи G-306-2P | 71 800 |
| Доп. комплект чертежей без лицензии (копия для строителей) G-306-2P | 3 000 |
| Паспорт проекта G-306-2P | 5 000 |
Паспорт проекта и Доп. комплект чертежей без лицензии (копия для строителей) отдельно от основного комплекта не продаются.