
| Общая площадь | 151.1 м2 |
| Жилая площадь | 82.5 м2 |
| Габариты | 10.5 x 14.8 м |
| Мансарда | Есть |
| Жилые комнаты 1 этажа, кроме гостиных | 1 шт |
| Спальни и жилые комнаты, кроме гостиных | 4 шт |
| С/у, ванны | 3 шт |
| Внешний вид: |
★★★★★ ★★★★★ |
| Планировки: |
★★★★★ ★★★★★ |
По данному проекту обзоров нет
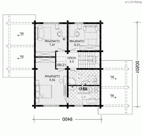
Архив обзоров1-й этаж 
Мансарда 
Вид спереди
Вид слева
Вид справа
Вид сзади
| Материал: | Кол: | Ед.изм: | Коммент: |
|---|---|---|---|
| Утеплитель | 92.4 | м2 | кровля, Rockwool Лайт Баттс, 200 |
| Утеплитель | 58 | м2 | перегородки, Rockwool Лайт Баттс, 100 |
| Площадь кровли | 204.4 | м2 | |
| Брус | 68.9 | м3 | 200х200мм на наружные и внутренние стены |
Цены на проекты, услуги и все прочие товары приведенные ниже актуальны на 09.05.2026.
| Комплек |
Цена (руб): |
|---|---|
| Комплект Застройщика G-151-1D | 65 900 |
| Полный комплект чертежей G-151-1D | 55 800 |
| Архитектурно-строительные чертежи G-151-1D | 40 800 |
| Доп. комплект чертежей без лицензии (копия для строителей) G-151-1D | 3 000 |
| Паспорт проекта G-151-1D | 5 000 |
| Дополни |
Цена (руб): |
| Строительство, материалы, консультация, смета | - |
Паспорт проекта и Доп. комплект чертежей без лицензии (копия для строителей) отдельно от основного комплекта не продаются.
Эля
Добрый день. Сколько примерно кубов бруса 200*200 в целом нужно для строительства этого проекта?
Эллада
таблица расхода основных материалов будет в ближайшее время обновлена. Расход бруса 200х200мм на наружные и внутренние стены составляет 68.9 м3.