
| Общая площадь | 139.4 м2 |
| Жилая площадь | 81.9 м2 |
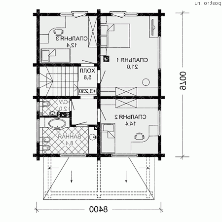
| Габариты | 9.7 x 8.4 м |
| Жилые комнаты 1 этажа, кроме гостиных | 1 шт |
| Спальни и жилые комнаты, кроме гостиных | 4 шт |
| С/у, ванны | 3 шт |
| Внешний вид: |
★★★★★ ★★★★★ |
| Планировки: |
★★★★★ ★★★★★ |
По данному проекту обзоров нет
Архив обзоров1-й этаж, высота 2.93 м 
2-й этаж, высота 2.92 м 
Вид спереди
Вид слева
Вид справа
Вид сзади
Цены на проекты, услуги и все прочие товары приведенные ниже актуальны на 08.02.2026.
| Комплек |
Цена (руб): |
|---|---|
| Комплект Застройщика G-139-1D | 65 900 |
| Полный комплект чертежей G-139-1D | 55 800 |
| Архитектурно-строительные чертежи G-139-1D | 40 800 |
| Доп. комплект чертежей без лицензии (копия для строителей) G-139-1D | 3 000 |
| Паспорт проекта G-139-1D | 5 000 |
| Дополни |
Цена (руб): |
| Строительство, материалы, консультация, смета | - |
Паспорт проекта и Доп. комплект чертежей без лицензии (копия для строителей) отдельно от основного комплекта не продаются.