
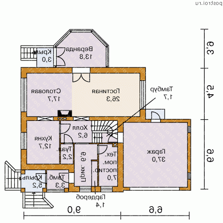
| Общая площадь | 223 м2 |
| Жилая площадь | 92.34 м2 |
| Площадь застройки | 183.53 м2 |
| Габариты | 11.1 x 15.6 м |
| Спальни и жилые комнаты, кроме гостиных | 3 шт |
| С/у, ванны | 3 шт |
| Сауна | Есть |
| Гараж | Есть |
1-й этаж, высота 3.00 м 
2-й этаж, высота 2.95 м 
Вид спереди
Вид слева
Вид справа
Вид сзади
| Материал: | Кол: | Ед.изм: | Коммент: |
|---|---|---|---|
| Утеплитель | 286.4 | м2 | Минеральная вата "Рокволл" |
| Утеплитель | 85.13 | м2 | Пенополистирол 2 слоя по 50мм (пол 1-го этажа) |
| Утеплитель | 15.31 | м2 | Цоколь (пенополистирол 50мм) |
| Площадь кровли | 247 | м2 | |
| Штукатурка | 286.4 | м2 | Наружные стены. |
| Газобетон | 107.4 | м3 | Наружные стены (газобетон толщ.375мм альтернатива кирпич пустотный M150 - 107.4 м3 ) |
| Газобетон | 17.18 | м3 | Внутр. несущая стена (газобетон толщ.375мм альтернатива кирпич пустотный M150 - 17.18 м3) |
| Площадь перегородок | 84.76 | м2 | Комплектация в зависимости от выбранного материала. |
| Искусственный камень | 20.94 | м2 | Цоколь |
| Искусственный камень | 12.58 | м2 | Фрагменты стены. |
| Бетон | 71.53 | м3 | Общее кол-во бетона В20 |
Цены на проекты, услуги и все прочие товары приведенные ниже актуальны на 13.05.2026.
| Комплек |
Цена (руб): |
|---|---|
| Полный комплект чертежей E-223-1P | 103 000 |
| Архитектурно-строительные чертежи E-223-1P | 83 000 |
| Электронная копия проекта (pdf) E-223-1P | 7 000 |
Паспорт проекта и Доп. комплект чертежей без лицензии (копия для строителей) отдельно от основного комплекта не продаются.
прораб
А можно разрез дома посмотреть?
Юлия
прилагаем разрез