
| Общая площадь | 156.91 м2 |
| Жилая площадь | 94.5 м2 |
| Площадь застройки | 125 м2 |
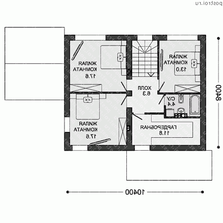
| Габариты | 8.4 x 10.4 м |
| Жилые комнаты 1 этажа, кроме гостиных | 1 шт |
| Спальни и жилые комнаты, кроме гостиных | 4 шт |
| С/у, ванны | 2 шт |
| Внешний вид: |
★★★★★ ★★★★★ |
| Планировки: |
★★★★★ ★★★★★ |
По данному проекту обзоров нет
Архив обзоров1-й этаж, высота 2.85 м 
2-й этаж, высота 2.54 м 
Вид спереди
Вид слева
Вид справа
Вид сзади
| Материал: | Кол: | Ед.изм: | Коммент: |
|---|---|---|---|
| Строительный объём | 1100 | м3 | |
| Утеплитель | 16.5 | мм | |
| Штукатурка | 165.6 | м2 | |
| Газобетон | 95.5 | м3 | 400*250*625 |
| Газобетон | 5.7 | м3 | 100*250*625 |
| Металлочерепица | 200.5 | м3 | |
| Вагонка | 17.5 | м2 | |
| Бетон | 44 | м3 | В 20 W8 F 50 |
| Бетон | 16.1 | м3 | В 25 |
| Пенополистерол | 115 | м2 | |
| Древесина | 11.85 | м3 | |
| Декоративный камень | 56.6 | м2 | |
| Площадь террасы, крыльца и балконов | 28 | м2 | |
| Плиты OSB | 82 | м2 | 18 мм |
Цены на проекты, услуги и все прочие товары приведенные ниже актуальны на 24.03.2026.
| Комплек |
Цена (руб): | Цена со скидкой 10%: |
|---|---|---|
| Комплект Застройщика C-157-3P | 50 000 | 45 000 |
| Архитектурно-строительные чертежи C-157-3P | 40 000 | 36 000 |
| Доп. комплект чертежей без лицензии (копия для строителей) C-157-3P | 3 000 | 2 700 |
| Паспорт проекта C-157-3P | 4 000 | 3 600 |
| Дополни |
Цена (руб): | |
| Строительство, материалы, консультация, смета | - |
Паспорт проекта и Доп. комплект чертежей без лицензии (копия для строителей) отдельно от основного комплекта не продаются.
Анетт
сообщите,пожалуйста, расход материалов . размеры гостиной.можно увидеть разрез с лестницей.и ее размер.спасибо
Эллада
Добрый день! Расход материалов добавлен. Размеры лестничного проема 3000 х 2000 мм.