Проект № u-194-1k ЗЕРКАЛЬНЫЙ

U-194-1K проект двухэтажного коттеджа из кирпича размером 14 на 11
проект
U-194-1K
ЦЕНА

38 000 руб.

Купить проект ВЕРСИЯ ДЛЯ ПЕЧАТИ


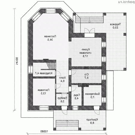
Общая площадь198.03 м2
Жилая площадь106 м2
Площадь застройки142.45 м2
Габариты14.1 x 10.58 м
Высота в коньке9600 м
Жилые комнаты 1 этажа, кроме гостиных1 шт
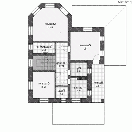
Спальни и жилые комнаты, кроме гостиных4 шт
С/у, ванны3 шт


РЕЙТИНГ
★★★★★
★★★★★
(3 оценки):
Внешний вид:
★★★★★
★★★★★
Планировки:
★★★★★
★★★★★


ОБЗОРЫ ПО ПРОЕКТУ:

По данному проекту обзоров нет

Архив обзоров

АКЦИИ НА ЭТОТ ПРОЕКТ:
Приехав к нам в офис - Вы можете:
  - сразу его приобрести.
Перед приездом обязательно забронируйте проект по телефону.
В данный проект возможно внести изменения.
Также читайте статью: внесение изменений в типовой проект.
Если строители уже на участке и Вам срочно нужен проект, мы можем выслать чертежи фундамента сразу после оплаты проектной документации. Срок подготовки проекта, как правило, 3-4 рабочих дня (для регионов плюс время на доставку).
На этот проект предусмотрена бесплатная доставка (только на территории РФ).

МАТЕРИАЛЫ ДЛЯ СТРОИТЕЛЬСТВА ДОМА:
Фундамент - мелкозаглубленная монолитная ж/б плита
Наружные стены - кирпич, камень, декоративные элементы
Перекрытия - монолитные ж/б и по деревянным балкам
Тип кровли - чердачная
Покрытие кровли - металлочерепица
Наружная отделка цоколя - облицовочный камень
РАСХОД ОСНОВНЫХ МАТЕРИАЛОВ:
Материал:Кол:Ед.изм:Коммент:
Строительный объём 1397.11 м3
Утеплитель 9 м3 Пеноплэкс 45
Площадь кровли 281.34 м2
Кирпич 57.26 м3 М150 пустотелый для внутренних несущих стен и перегородок
Кирпич 4.22 м3 М150 полнотелый для вентканалов
Натуральный камень 28.13 м2
Поризованные блоки 155.11 м3 М150 для наружных несущих стен
Бетон 94 м3 B20 W6 F150 На фундамент
Бетон 24 м3 B7.5 На фундамент

ВАРИАНТЫ ПРОЕКТА И ПОХОЖИЕ

Зеркальный вариант
38 000 руб

Вариант коттеджа из пенобетона меньшей площади
38 000 руб

Вариант дома из пеноблоков большей площади
38 000 руб
СТОИМОСТЬ ПРОЕКТА

Цены на проекты, услуги и все прочие товары приведенные ниже актуальны на 23.12.2025.

Комплектация: Цена (руб):
Архитектурно-строительные чертежи U-194-1K 38 000
Доп. комплект чертежей без лицензии (копия для строителей) U-194-1K 2 000
Паспорт проекта U-194-1K 5 000
Инженерные сети (ВК.ОВ) U-194-1K 8 000
Дополнительные услуги: Цена (руб):
Изменение типа перекрытий (цена от) 15 000
Добавить гараж (цена от) 20 000
Изменение типа фундамента (цена от) 15 000
Строительство, материалы, консультация, смета -

Паспорт проекта и Доп. комплект чертежей без лицензии (копия для строителей) отдельно от основного комплекта не продаются.

Купить проект



ФОРУМ И ОТЗЫВЫ ПО ПРОЕКТУ № U-194-1K
нина

Достоинства

Проект очень хороший!!! Красивый и недорогой!!!

Внешний вид:
★★★★★
★★★★★
Планировки:
★★★★★
★★★★★
Katerina

Добрый день! Скажите, пожалуйста, какова стоимость изменений данного проекта, связанная с заменой материала стен с кирпича на газобетон?
Увидела информацию в разделе "цены", спасибо
И ещё вопрос: входит ли в состав Архитектурно-строительных чертежей Инженерный раздел (водоснабжение, канализация, электрооборудование,отопление и вентиляция)? Дело в том, что в разделе "Цены" в комплектации Архитектурно-строительных чертежей о данном разделе ничего не сказано. Спасибо

Эллада

Добрый день! Благодарим за внимание к нашим проектам! К сожалению, к данному проекту комплектация документов инженерного раздела не предусмотрена. Вы можете обратиться в стороннюю организацию, которая специализируется на инженерных системах. Также можно решить этот вопрос непосредственно на стадии строительства, опытные специалисты будут компетентны в данном вопросе.

Мэкола

Возможна замена кровельного покрытия на натуральную черепицу?

Внешний вид:
★★★★★
★★★★★
Планировки:
★★★★★
★★★★★
Дарья

Замена возможна на стадии строительства, дополнительно нужно будет усилить стропильную конструкцию, что для опытных строителей не составит особого труда.

Copyright Postroi.ru © 2002-2025