
| Общая площадь | 133.74 м2 |
| Жилая площадь | 79.6 м2 |
| Площадь застройки | 146.22 м2 |
| Габариты | 8.5 x 8.5 м |
| Высота в коньке | 7227 м |
| Мансарда | Есть |
| Жилые комнаты 1 этажа, кроме гостиных | 1 шт |
| Спальни и жилые комнаты, кроме гостиных | 4 шт |
| С/у, ванны | 2 шт |
| Внешний вид: |
★★★★★ ★★★★★ |
| Планировки: |
★★★★★ ★★★★★ |
По данному проекту обзоров нет
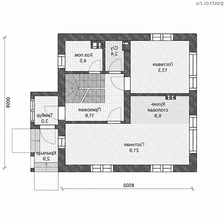
Архив обзоров1-й этаж, высота 2.97 м 
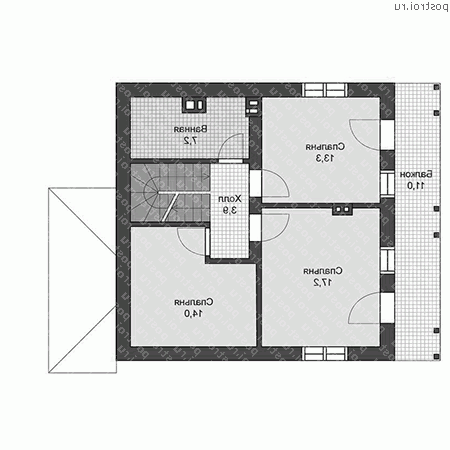
Мансарда, высота 2.68 м 
Вид спереди
Вид слева
Вид справа
Вид сзади
| Материал: | Кол: | Ед.изм: | Коммент: |
|---|---|---|---|
| Строительный объём | 569 | м3 | |
| Площадь кровли | 138.5 | м2 | |
| Газобетон | 117.26 | м3 | Для наружных и внутренних несущих стен |
| Газобетон | 4.85 | м3 | 250 мм |
| Газобетон | 16.82 | м3 | 150 мм Перегородки |
| Песок | 69 | м3 | |
| Бетон | 39.6 | м3 | Фундамент В 20 |
| Бетон | 7.5 | м3 | Фундамент В 7.5 |
| Кирпич полнотелый | 7.96 | м3 | Для вентканалов |
| Площадь террасы, крыльца и балконов | 11.18 | м2 |
Цены на проекты, услуги и все прочие товары приведенные ниже актуальны на 24.12.2025.
| Комплек |
Цена (руб): |
|---|---|
| Архитектурно-строительные чертежи U-119-1P | 35 000 |
| Доп. комплект чертежей без лицензии (копия для строителей) U-119-1P | 2 000 |
| Паспорт проекта U-119-1P | 5 000 |
| Дополни |
Цена (руб): |
| Изменение типа перекрытий (цена от) | 10 000 |
| Добавить гараж (цена от) | 20 000 |
| Изменение типа фундамента (цена от) | 10 000 |
| Строительство, материалы, консультация, смета | - |
Паспорт проекта и Доп. комплект чертежей без лицензии (копия для строителей) отдельно от основного комплекта не продаются.
Anton
Подскажите, пожалуйста, а можно этот же проект сделать на свайном фундаменте?
Эллада
Добрый день! Заложенная в проекте монолитная плита – универсальный тип фундамента, который подходит ко всем типам грунтов, кроме торфяных. Возможность использовать сваи зависит от грунтов на Вашем участке. Обычно, разработкой подобных фундаментов занимаются компании, специально ориентированные на такие конструкции. Возможно обратиться с проектом к производителю за перерасчетом. В проекте, к сожалению, такая услуга не предусмотрена.